NOWOCZESNY DOM BEZ POZWOLENIA NA BUDOWĘ

Modern Harmony 83 m2

Nowoczesny dom modułowy stworzony z myślą o wygodnym życiu rodzinnym. Łączy estetyczny design z praktycznym i dobrze przemyślanym układem wnętrz. Powierzchnia użytkowa: 74,65 m² – idealna do codziennego życia iweekendowego odpoczynku.

CENA OD:

305 100 zł netto + 8% VAT

OSTATNIE TERMINY NA luty 2026

Dom na zgłoszenie 70 m² Modern Harmony | Budaro®

52,80 m2

powierzchnia zabudowy

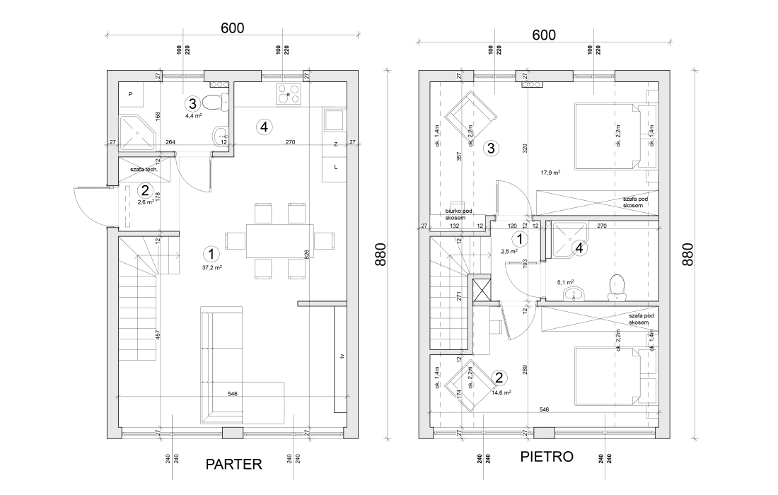
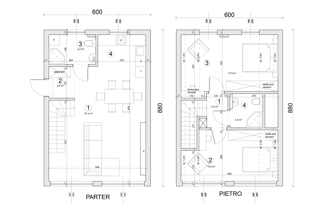
74,65 m2

powierzchnia użytkowa

83 m2

powierzchnia całkowita

Powierzchnia liczona po podłodze, bez uwzględnienia ścian działowych

6-9

liczba pomieszczeń

7,4 m

wysokość

45°

kąt nachylenia dachu

Duże przeszklenia i komfortowe wyjście na taras

Jasna przestrzeń dopasowana do codziennego życia

Modern Harmony 83 m2 to nowoczesny dom modułowy oparty na solidnej konstrukcji drewnianej, która gwarantuje trwałość, stabilność i sprawny montaż. Duże przeszklenia oraz drzwi tarasowe zapewniają naturalne doświetlenie wnętrz, tworząc jasną i przyjazną strefę dzienną. 

Przemyślany układ pomieszczeń sprzyja wygodnemu życiu rodzinnemu, a możliwość wyboru wariantów wykończenia pozwala dopasować dom do indywidualnych potrzeb i stylu mieszkańców.

Możliwe warianty elewacji

Świerk impregnowany

Atrakcyjnie wyglądające drzewo, pasujące do projektu.

Dom na zgłoszenie 70 m² Modern Harmony | Budaro®

Blacha na rąbek

Nowoczesne rozwiązanie w kolorze wybranym przez inwestora.

Dom na zgłoszenie 70 m² Modern Harmony | Budaro®

Tynk silikonowy

Tradycyjny tynk, w standardzie w kolorze białym.

Rzuty domu Modern Harmony 83 m2 w 3 różnych wariantach

Zapraszamy do środka

Dobierz pakiet korzyści
dopasowany do Twoich potrzeb

Podstawowy

Deweloperski

Deweloperski Plus

Dom na zgłoszenie 70 m² Modern Harmony | Budaro®

Dokumentacja projektowa

Dom na zgłoszenie 70 m² Modern Harmony | Budaro®
Dom na zgłoszenie 70 m² Modern Harmony | Budaro®
Dom na zgłoszenie 70 m² Modern Harmony | Budaro®
Dom na zgłoszenie 70 m² Modern Harmony | Budaro®

Transport na terenie całej Polski

Dom na zgłoszenie 70 m² Modern Harmony | Budaro®
Dom na zgłoszenie 70 m² Modern Harmony | Budaro®
Dom na zgłoszenie 70 m² Modern Harmony | Budaro®
Dom na zgłoszenie 70 m² Modern Harmony | Budaro®

Płyta fundamentowa

Dom na zgłoszenie 70 m² Modern Harmony | Budaro®
Dom na zgłoszenie 70 m² Modern Harmony | Budaro®
Dom na zgłoszenie 70 m² Modern Harmony | Budaro®
Dom na zgłoszenie 70 m² Modern Harmony | Budaro®

Konstrukcja domu

Dom na zgłoszenie 70 m² Modern Harmony | Budaro®
Dom na zgłoszenie 70 m² Modern Harmony | Budaro®
Dom na zgłoszenie 70 m² Modern Harmony | Budaro®
Dom na zgłoszenie 70 m² Modern Harmony | Budaro®

Montaż

Dom na zgłoszenie 70 m² Modern Harmony | Budaro®
Dom na zgłoszenie 70 m² Modern Harmony | Budaro®
Dom na zgłoszenie 70 m² Modern Harmony | Budaro®
Dom na zgłoszenie 70 m² Modern Harmony | Budaro®

Pokrycie dachowe

Dom na zgłoszenie 70 m² Modern Harmony | Budaro®
Dom na zgłoszenie 70 m² Modern Harmony | Budaro®
Dom na zgłoszenie 70 m² Modern Harmony | Budaro®
Dom na zgłoszenie 70 m² Modern Harmony | Budaro®

Stolarka okienna

Dom na zgłoszenie 70 m² Modern Harmony | Budaro®
Dom na zgłoszenie 70 m² Modern Harmony | Budaro®
Dom na zgłoszenie 70 m² Modern Harmony | Budaro®
Dom na zgłoszenie 70 m² Modern Harmony | Budaro®

Drzwi wejściowe

Dom na zgłoszenie 70 m² Modern Harmony | Budaro®
Dom na zgłoszenie 70 m² Modern Harmony | Budaro®
Dom na zgłoszenie 70 m² Modern Harmony | Budaro®
Dom na zgłoszenie 70 m² Modern Harmony | Budaro®

Elewacja (w cenie deska)

Dom na zgłoszenie 70 m² Modern Harmony | Budaro®
Dom na zgłoszenie 70 m² Modern Harmony | Budaro®
Dom na zgłoszenie 70 m² Modern Harmony | Budaro®
Dom na zgłoszenie 70 m² Modern Harmony | Budaro®

Ściany działowe

Dom na zgłoszenie 70 m² Modern Harmony | Budaro®
Dom na zgłoszenie 70 m² Modern Harmony | Budaro®
Dom na zgłoszenie 70 m² Modern Harmony | Budaro®
Dom na zgłoszenie 70 m² Modern Harmony | Budaro®

Instalacja elektryczna

Dom na zgłoszenie 70 m² Modern Harmony | Budaro®
Dom na zgłoszenie 70 m² Modern Harmony | Budaro®
Dom na zgłoszenie 70 m² Modern Harmony | Budaro®
Dom na zgłoszenie 70 m² Modern Harmony | Budaro®

Instalacja wodno-kanalizacyjna

Dom na zgłoszenie 70 m² Modern Harmony | Budaro®
Dom na zgłoszenie 70 m² Modern Harmony | Budaro®
Dom na zgłoszenie 70 m² Modern Harmony | Budaro®
Dom na zgłoszenie 70 m² Modern Harmony | Budaro®

Płyta GK

Dom na zgłoszenie 70 m² Modern Harmony | Budaro®
Dom na zgłoszenie 70 m² Modern Harmony | Budaro®
Dom na zgłoszenie 70 m² Modern Harmony | Budaro®
Dom na zgłoszenie 70 m² Modern Harmony | Budaro®

Klimatyzacja

Dom na zgłoszenie 70 m² Modern Harmony | Budaro®
Dom na zgłoszenie 70 m² Modern Harmony | Budaro®
Dom na zgłoszenie 70 m² Modern Harmony | Budaro®
Dom na zgłoszenie 70 m² Modern Harmony | Budaro®

Maty grzewcze parter

Dom na zgłoszenie 70 m² Modern Harmony | Budaro®
Dom na zgłoszenie 70 m² Modern Harmony | Budaro®
Dom na zgłoszenie 70 m² Modern Harmony | Budaro®
Dom na zgłoszenie 70 m² Modern Harmony | Budaro®

Wylewka

Dom na zgłoszenie 70 m² Modern Harmony | Budaro®
Dom na zgłoszenie 70 m² Modern Harmony | Budaro®
Dom na zgłoszenie 70 m² Modern Harmony | Budaro®
Dom na zgłoszenie 70 m² Modern Harmony | Budaro®

Szpachlowanie

Dom na zgłoszenie 70 m² Modern Harmony | Budaro®
Dom na zgłoszenie 70 m² Modern Harmony | Budaro®
Dom na zgłoszenie 70 m² Modern Harmony | Budaro®
Dom na zgłoszenie 70 m² Modern Harmony | Budaro®

Schody

Dom na zgłoszenie 70 m² Modern Harmony | Budaro®
Dom na zgłoszenie 70 m² Modern Harmony | Budaro®
Dom na zgłoszenie 70 m² Modern Harmony | Budaro®
Dom na zgłoszenie 70 m² Modern Harmony | Budaro®

CENA

305 100 zł netto

232 000 zł netto

247 000 zł netto

Ceny się zmieniają,
więc uzyskaj wycenę poniżej

Ten dom jest dostosowany do wymagań deweloperów budowlanych