NOWOCZESNY DOM BEZ POZWOLENIA NA BUDOWĘ

Modern Heaven

Przestronne piętro oraz parter, zapewnia ogromny komfort wypoczynku. W domu o całkowitej powierzchni 63 m2 możemy wydzielić od 3 do 5 pomieszczeń. Szczególnie dobra propozycja dla osób ceniących sobie ilość wolnej przestrzeni.

CENA OD:

205 000 zł netto + 8% VAT

OSTATNIE TERMINY NA styczeń 2026

Dom na zgłoszenie 35 m² Modern Heaven | Budaro®

do 35 m2

powierzchnia zabudowy

47-49 m2

powierzchnia użytkowa

63 m2

powierzchnia całkowita

3-5

liczba pomieszczeń

6,72 m

wysokość

45°

kąt nachylenia dachu

Przestronne okno górne oraz drzwi tarasowe

Przestronny dom

Czytanie książki na piętrze przy ogromnym oknie, zaraz przy powierzchni sypialnej to tutaj standard. Okno już od samego rana przenosi promienie słońca prosto do oczu budzących się na piętrze mieszkańców. 

Propozycja energooszczędna, jednak bardzo przestronna. Zdecydowanie dla osób, które dobrze czują się w otwartych przestrzeniach. Funkcjonalne ustawienie oraz duże drzwi tarasowe na parterze dają niesamowite możliwości wypoczynku.

Możliwe warianty elewacji

Świerk impregnowany

Atrakcyjnie wyglądające drzewo, pasujące do projektu.

Dom na zgłoszenie 35 m² Modern Heaven | Budaro®

Blacha na rąbek

Nowoczesne rozwiązanie w kolorze wybranym przez inwestora.

Dom na zgłoszenie 35 m² Modern Heaven | Budaro®

Tynk silikonowy

Tradycyjny tynk, w standardzie w kolorze białym.

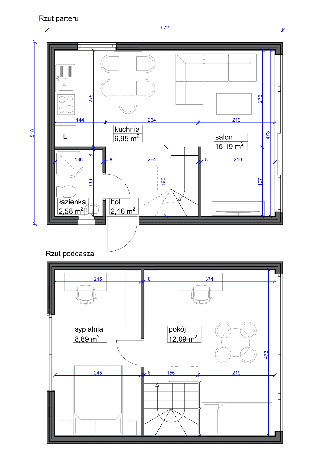
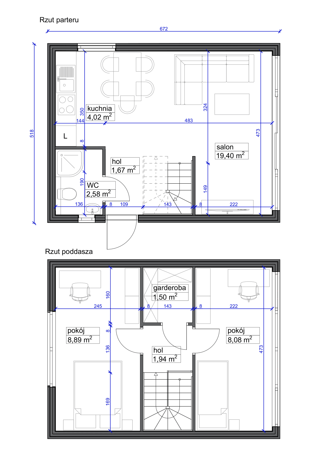
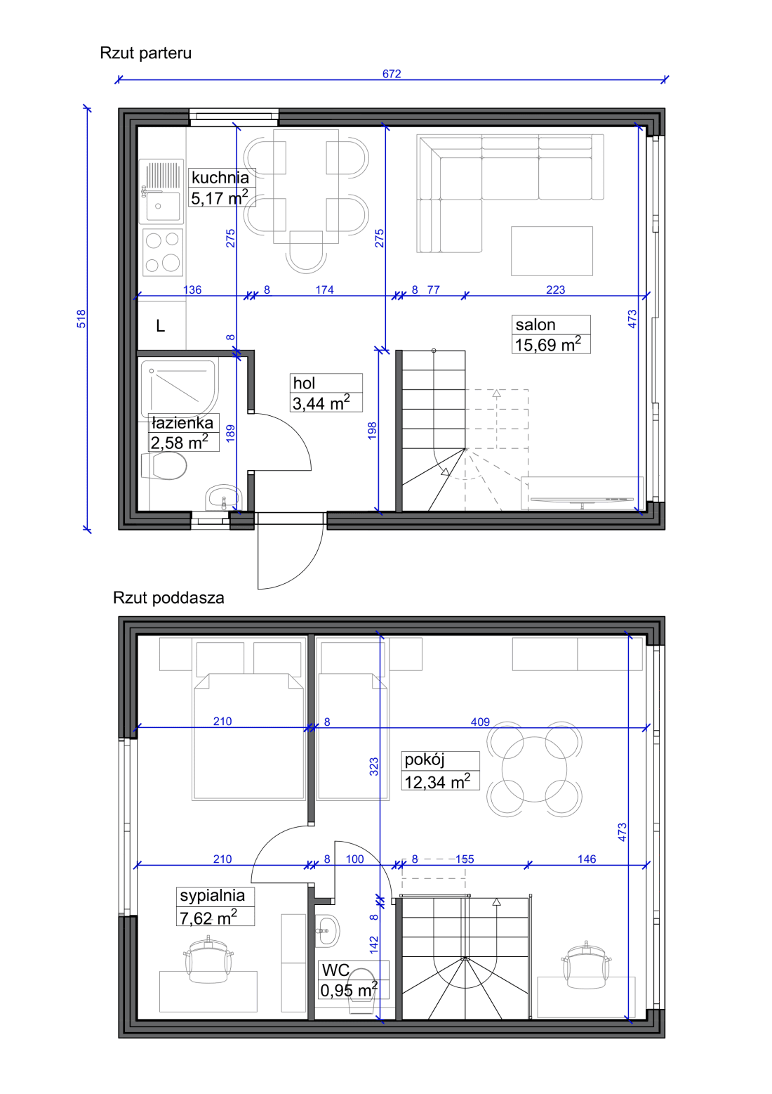
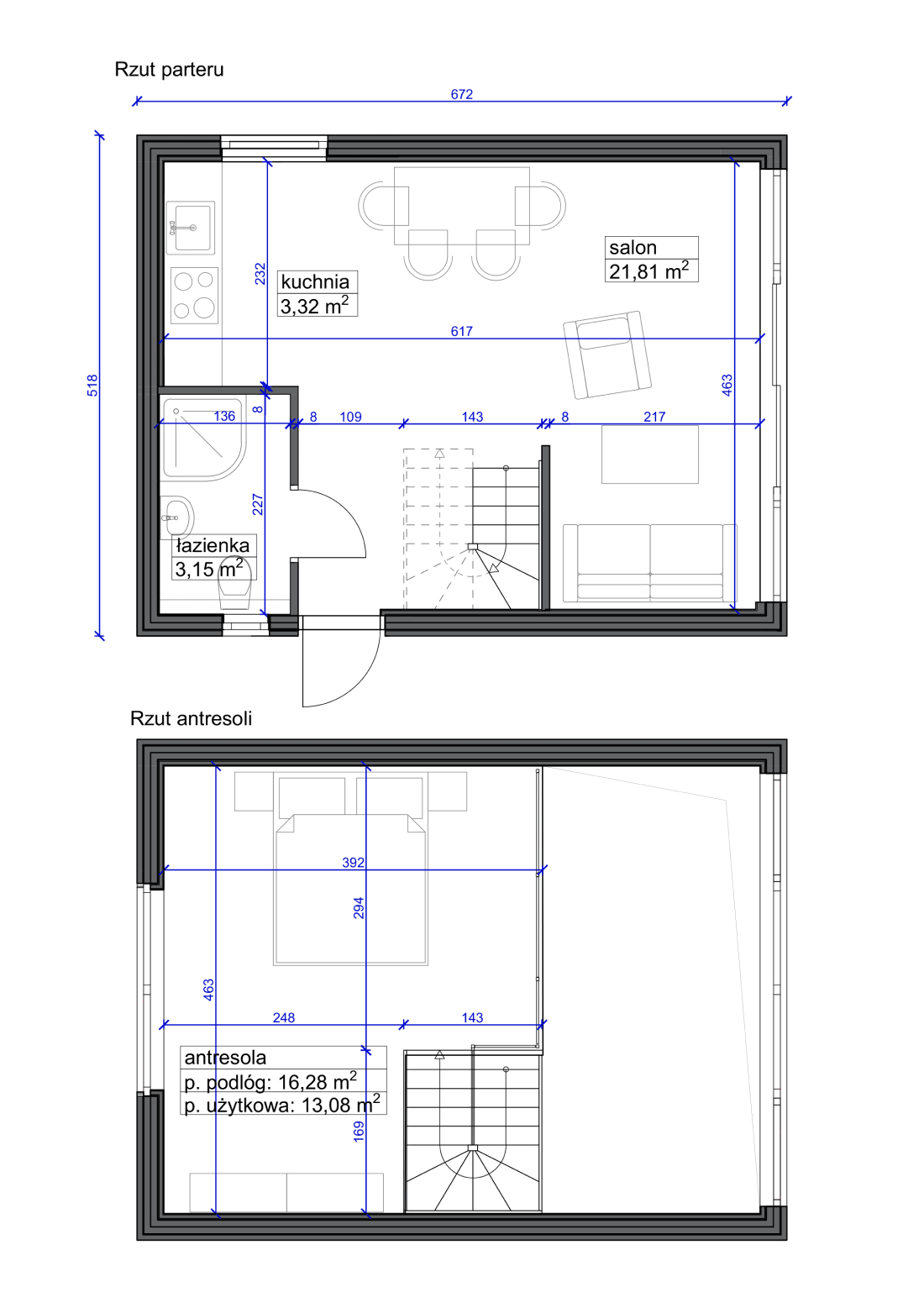
Rzuty domu Modern Heaven w 5 różnych wariantach

Wizualizacja domu Modern Heaven

Dom na zgłoszenie 35 m² Modern Heaven | Budaro®

Salon + aneks kuchenny
26,20 m2

Łazienka 3,70 m2

Powierzchnia użytkowa 27,50 m2

Dom na zgłoszenie 35 m² Modern Heaven | Budaro®

Pokój 29,90 m2

Powierzchnia użytkowa 29,90 m2

Modern Heaven
w trakcie i po realizacji

Dom modułowy Grodków 05
Dom modułowy w Grodkowie 011

Zapraszamy do środka

Dobierz pakiet korzyści
dopasowany do Twoich potrzeb

Podstawowy

Deweloperski

Deweloperski Plus

Pod Klucz

Dom na zgłoszenie 35 m² Modern Heaven | Budaro®

Dokumentacja projektowa

Dom na zgłoszenie 35 m² Modern Heaven | Budaro®
Dom na zgłoszenie 35 m² Modern Heaven | Budaro®
Dom na zgłoszenie 35 m² Modern Heaven | Budaro®
Dom na zgłoszenie 35 m² Modern Heaven | Budaro®
Dom na zgłoszenie 35 m² Modern Heaven | Budaro®

Transport na terenie całej Polski

Dom na zgłoszenie 35 m² Modern Heaven | Budaro®
Dom na zgłoszenie 35 m² Modern Heaven | Budaro®
Dom na zgłoszenie 35 m² Modern Heaven | Budaro®
Dom na zgłoszenie 35 m² Modern Heaven | Budaro®
Dom na zgłoszenie 35 m² Modern Heaven | Budaro®

Płyta fundamentowa

Dom na zgłoszenie 35 m² Modern Heaven | Budaro®
Dom na zgłoszenie 35 m² Modern Heaven | Budaro®
Dom na zgłoszenie 35 m² Modern Heaven | Budaro®
Dom na zgłoszenie 35 m² Modern Heaven | Budaro®
Dom na zgłoszenie 35 m² Modern Heaven | Budaro®

Konstrukcja domu

Dom na zgłoszenie 35 m² Modern Heaven | Budaro®
Dom na zgłoszenie 35 m² Modern Heaven | Budaro®
Dom na zgłoszenie 35 m² Modern Heaven | Budaro®
Dom na zgłoszenie 35 m² Modern Heaven | Budaro®
Dom na zgłoszenie 35 m² Modern Heaven | Budaro®

Montaż

Dom na zgłoszenie 35 m² Modern Heaven | Budaro®
Dom na zgłoszenie 35 m² Modern Heaven | Budaro®
Dom na zgłoszenie 35 m² Modern Heaven | Budaro®
Dom na zgłoszenie 35 m² Modern Heaven | Budaro®
Dom na zgłoszenie 35 m² Modern Heaven | Budaro®

Pokrycie dachowe

Dom na zgłoszenie 35 m² Modern Heaven | Budaro®
Dom na zgłoszenie 35 m² Modern Heaven | Budaro®
Dom na zgłoszenie 35 m² Modern Heaven | Budaro®
Dom na zgłoszenie 35 m² Modern Heaven | Budaro®
Dom na zgłoszenie 35 m² Modern Heaven | Budaro®

Stolarka okienna

Dom na zgłoszenie 35 m² Modern Heaven | Budaro®
Dom na zgłoszenie 35 m² Modern Heaven | Budaro®
Dom na zgłoszenie 35 m² Modern Heaven | Budaro®
Dom na zgłoszenie 35 m² Modern Heaven | Budaro®
Dom na zgłoszenie 35 m² Modern Heaven | Budaro®

Drzwi wejściowe

Dom na zgłoszenie 35 m² Modern Heaven | Budaro®
Dom na zgłoszenie 35 m² Modern Heaven | Budaro®
Dom na zgłoszenie 35 m² Modern Heaven | Budaro®
Dom na zgłoszenie 35 m² Modern Heaven | Budaro®
Dom na zgłoszenie 35 m² Modern Heaven | Budaro®

Elewacja (w cenie deska)

Dom na zgłoszenie 35 m² Modern Heaven | Budaro®
Dom na zgłoszenie 35 m² Modern Heaven | Budaro®
Dom na zgłoszenie 35 m² Modern Heaven | Budaro®
Dom na zgłoszenie 35 m² Modern Heaven | Budaro®
Dom na zgłoszenie 35 m² Modern Heaven | Budaro®

Ściany działowe

Dom na zgłoszenie 35 m² Modern Heaven | Budaro®
Dom na zgłoszenie 35 m² Modern Heaven | Budaro®
Dom na zgłoszenie 35 m² Modern Heaven | Budaro®
Dom na zgłoszenie 35 m² Modern Heaven | Budaro®
Dom na zgłoszenie 35 m² Modern Heaven | Budaro®

Instalacja elektryczna

Dom na zgłoszenie 35 m² Modern Heaven | Budaro®
Dom na zgłoszenie 35 m² Modern Heaven | Budaro®
Dom na zgłoszenie 35 m² Modern Heaven | Budaro®
Dom na zgłoszenie 35 m² Modern Heaven | Budaro®
Dom na zgłoszenie 35 m² Modern Heaven | Budaro®

Instalacja wodno-kanalizacyjna

Dom na zgłoszenie 35 m² Modern Heaven | Budaro®
Dom na zgłoszenie 35 m² Modern Heaven | Budaro®
Dom na zgłoszenie 35 m² Modern Heaven | Budaro®
Dom na zgłoszenie 35 m² Modern Heaven | Budaro®
Dom na zgłoszenie 35 m² Modern Heaven | Budaro®

Płyta GK

Dom na zgłoszenie 35 m² Modern Heaven | Budaro®
Dom na zgłoszenie 35 m² Modern Heaven | Budaro®
Dom na zgłoszenie 35 m² Modern Heaven | Budaro®
Dom na zgłoszenie 35 m² Modern Heaven | Budaro®
Dom na zgłoszenie 35 m² Modern Heaven | Budaro®

Klimatyzacja

Dom na zgłoszenie 35 m² Modern Heaven | Budaro®
Dom na zgłoszenie 35 m² Modern Heaven | Budaro®
Dom na zgłoszenie 35 m² Modern Heaven | Budaro®
Dom na zgłoszenie 35 m² Modern Heaven | Budaro®
Dom na zgłoszenie 35 m² Modern Heaven | Budaro®

Maty grzewcze parter

Dom na zgłoszenie 35 m² Modern Heaven | Budaro®
Dom na zgłoszenie 35 m² Modern Heaven | Budaro®
Dom na zgłoszenie 35 m² Modern Heaven | Budaro®
Dom na zgłoszenie 35 m² Modern Heaven | Budaro®
Dom na zgłoszenie 35 m² Modern Heaven | Budaro®

Wylewka

Dom na zgłoszenie 35 m² Modern Heaven | Budaro®
Dom na zgłoszenie 35 m² Modern Heaven | Budaro®
Dom na zgłoszenie 35 m² Modern Heaven | Budaro®
Dom na zgłoszenie 35 m² Modern Heaven | Budaro®
Dom na zgłoszenie 35 m² Modern Heaven | Budaro®

Szpachlowanie

Dom na zgłoszenie 35 m² Modern Heaven | Budaro®
Dom na zgłoszenie 35 m² Modern Heaven | Budaro®
Dom na zgłoszenie 35 m² Modern Heaven | Budaro®
Dom na zgłoszenie 35 m² Modern Heaven | Budaro®
Dom na zgłoszenie 35 m² Modern Heaven | Budaro®

Ocieplenie

Dom na zgłoszenie 35 m² Modern Heaven | Budaro®
Dom na zgłoszenie 35 m² Modern Heaven | Budaro®
Dom na zgłoszenie 35 m² Modern Heaven | Budaro®
Dom na zgłoszenie 35 m² Modern Heaven | Budaro®
Dom na zgłoszenie 35 m² Modern Heaven | Budaro®

Orynnowanie

Dom na zgłoszenie 35 m² Modern Heaven | Budaro®
Dom na zgłoszenie 35 m² Modern Heaven | Budaro®
Dom na zgłoszenie 35 m² Modern Heaven | Budaro®
Dom na zgłoszenie 35 m² Modern Heaven | Budaro®
Dom na zgłoszenie 35 m² Modern Heaven | Budaro®

Instalacja CO

Dom na zgłoszenie 35 m² Modern Heaven | Budaro®
Dom na zgłoszenie 35 m² Modern Heaven | Budaro®
Dom na zgłoszenie 35 m² Modern Heaven | Budaro®
Dom na zgłoszenie 35 m² Modern Heaven | Budaro®
Dom na zgłoszenie 35 m² Modern Heaven | Budaro®

Schody

Dom na zgłoszenie 35 m² Modern Heaven | Budaro®
Dom na zgłoszenie 35 m² Modern Heaven | Budaro®
Dom na zgłoszenie 35 m² Modern Heaven | Budaro®
Dom na zgłoszenie 35 m² Modern Heaven | Budaro®
Dom na zgłoszenie 35 m² Modern Heaven | Budaro®

Malowanie

Dom na zgłoszenie 35 m² Modern Heaven | Budaro®
Dom na zgłoszenie 35 m² Modern Heaven | Budaro®
Dom na zgłoszenie 35 m² Modern Heaven | Budaro®
Dom na zgłoszenie 35 m² Modern Heaven | Budaro®
Dom na zgłoszenie 35 m² Modern Heaven | Budaro®

Podłogi

Dom na zgłoszenie 35 m² Modern Heaven | Budaro®
Dom na zgłoszenie 35 m² Modern Heaven | Budaro®
Dom na zgłoszenie 35 m² Modern Heaven | Budaro®
Dom na zgłoszenie 35 m² Modern Heaven | Budaro®
Dom na zgłoszenie 35 m² Modern Heaven | Budaro®

Kontakty i włączniki

Dom na zgłoszenie 35 m² Modern Heaven | Budaro®
Dom na zgłoszenie 35 m² Modern Heaven | Budaro®
Dom na zgłoszenie 35 m² Modern Heaven | Budaro®
Dom na zgłoszenie 35 m² Modern Heaven | Budaro®
Dom na zgłoszenie 35 m² Modern Heaven | Budaro®

Drzwi wewnętrzne

Dom na zgłoszenie 35 m² Modern Heaven | Budaro®
Dom na zgłoszenie 35 m² Modern Heaven | Budaro®
Dom na zgłoszenie 35 m² Modern Heaven | Budaro®
Dom na zgłoszenie 35 m² Modern Heaven | Budaro®
Dom na zgłoszenie 35 m² Modern Heaven | Budaro®

CENA

205 000 zł netto

232 000 zł netto

247 000 zł netto

297 700 zł netto

Ceny się zmieniają,
więc uzyskaj wycenę poniżej

Ten domek jest dostosowany do wymagań deweloperów budowlanych

Możliwy projekt wykończenia
Twojego domu

Poczuj się jak w domu