NOWOCZESNY DOM BEZ POZWOLENIA NA BUDOWĘ

Dom modułowy
Modern Oasis

Dom spełniający wszystkie wymagania domu na zgłoszenie do 35m2. Rozciągający się widok z antresoli przez górne okno domu zapewnia poczucie przestronności, a także wpuszcza do domu dużo światła.

CENA OD:

211 500 zł netto + 8% VAT

OSTATNIE TERMINY NA maj 2026

Dom na zgłoszenie 35 m² Modern Oasis | Budaro®

do 35 m2

powierzchnia zabudowy

31-33 m2

powierzchnia użytkowa

40,70 m2

powierzchnia całkowita

Powierzchnia liczona po podłodze, bez uwzględnienia ścian działowych

1-2 + antresola

liczba pomieszczeń

5,62 m

wysokość

45°

kąt nachylenia dachu

Przestronne okno górne oraz drzwi tarasowe

Dom z klimatyczną antresolą

W tym projekcie to właśnie ilość słońca wpadającego do tego domu za dnia zachwyca klientów Budaro. Nawet zimą dom wystawiony oknami na południe nagrzewa swoje wnętrze podnosząc jego energooszczędność. Wchodząc do domku od razu czuć jego przestronność dzięki dużej, ponad 5-metrowej wysokości do jego szczytu.

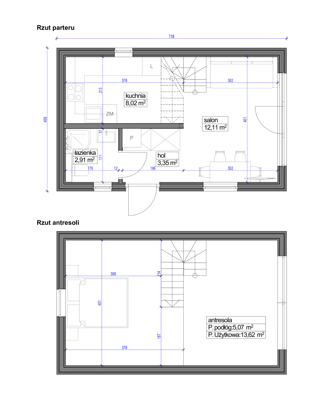
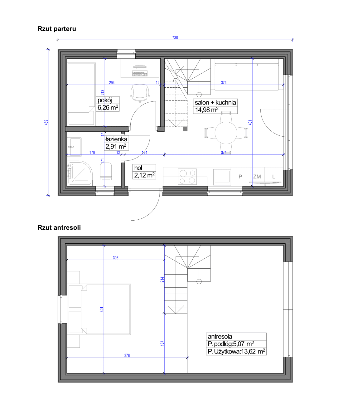
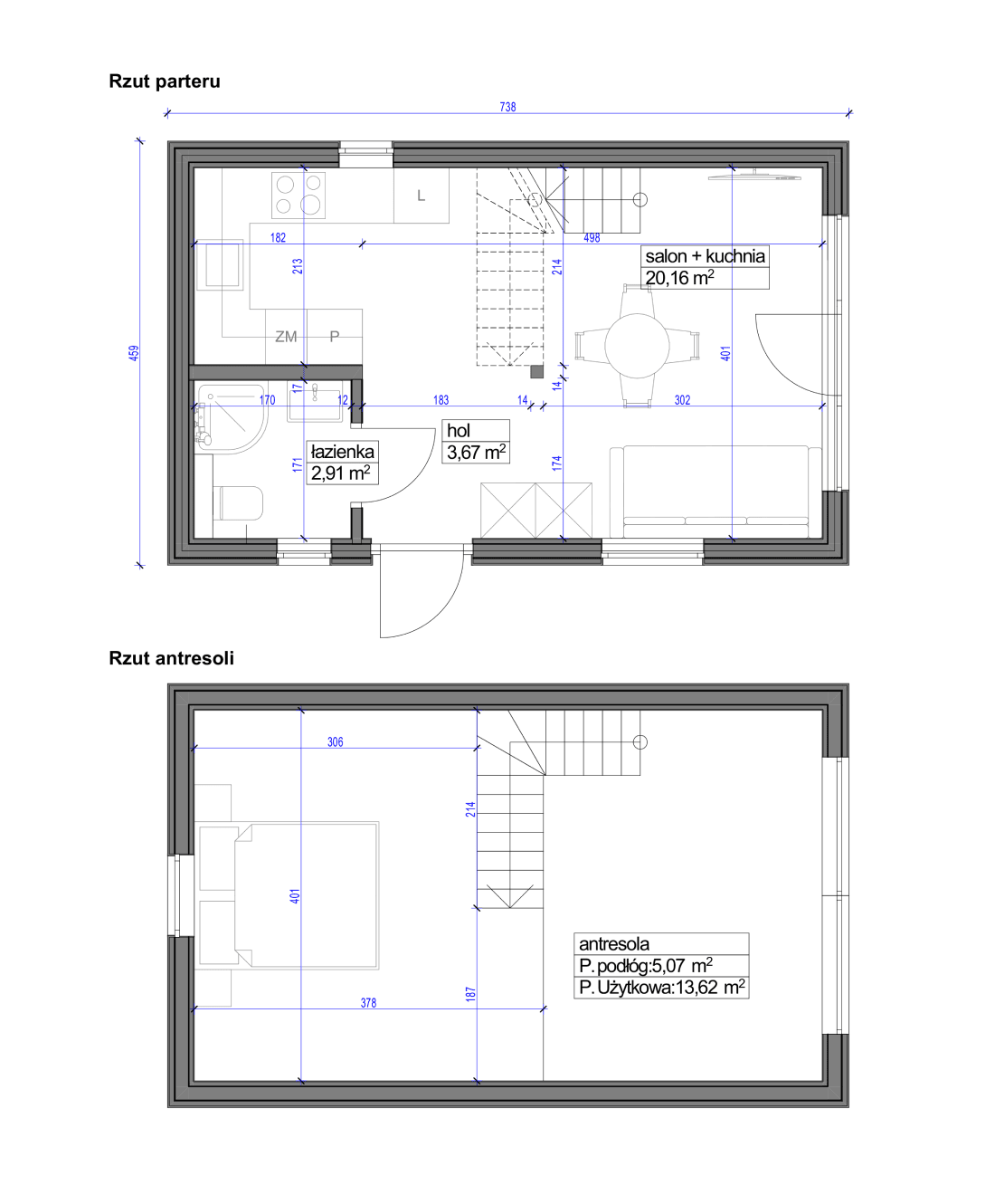
Układ domu przygotowany jest w trzech wersjach. Jako projekt 1-pokojowy z antresolą,  2-pokojowy z antresolą zmniejszając wielkość salonu i kuchni oraz 2-pokojowy z antresolą z innym rozkładem pomieszczeń.

Możliwe warianty elewacji

Świerk impregnowany

Atrakcyjnie wyglądające drzewo, pasujące do projektu.

Dom na zgłoszenie 35 m² Modern Oasis | Budaro®

Blacha na rąbek

Nowoczesne rozwiązanie w kolorze wybranym przez inwestora.

Dom na zgłoszenie 35 m² Modern Oasis | Budaro®

Tynk silikonowy

Tradycyjny tynk, w standardzie w kolorze białym.

Rzuty domu Modern Oasis w 3 różnych wariantach

Wizualizacja domu Modern Oasis

Dom na zgłoszenie 35 m² Modern Oasis | Budaro®

Salon + aneks kuchenny
25,82 m2

Łazienka 2,75 m2

Powierzchnia użytkowa 28,57 m2

Dom na zgłoszenie 35 m² Modern Oasis | Budaro®

Antresola 14,10 m2

Powierzchnia użytkowa 14,10 m2

Modern Oasis
w trakcie i po realizacji

Dom modułowy w Czerwonaku3
Czerwonak 00

Zapraszamy do środka

Dobierz pakiet korzyści
dopasowany do Twoich potrzeb

Podstawowy

Deweloperski

Deweloperski Plus

Dom na zgłoszenie 35 m² Modern Oasis | Budaro®

Dokumentacja projektowa

Dom na zgłoszenie 35 m² Modern Oasis | Budaro®
Dom na zgłoszenie 35 m² Modern Oasis | Budaro®
Dom na zgłoszenie 35 m² Modern Oasis | Budaro®
Dom na zgłoszenie 35 m² Modern Oasis | Budaro®

Transport na terenie całej Polski

Dom na zgłoszenie 35 m² Modern Oasis | Budaro®
Dom na zgłoszenie 35 m² Modern Oasis | Budaro®
Dom na zgłoszenie 35 m² Modern Oasis | Budaro®
Dom na zgłoszenie 35 m² Modern Oasis | Budaro®

Płyta fundamentowa

Dom na zgłoszenie 35 m² Modern Oasis | Budaro®
Dom na zgłoszenie 35 m² Modern Oasis | Budaro®
Dom na zgłoszenie 35 m² Modern Oasis | Budaro®
Dom na zgłoszenie 35 m² Modern Oasis | Budaro®

Konstrukcja domu

Dom na zgłoszenie 35 m² Modern Oasis | Budaro®
Dom na zgłoszenie 35 m² Modern Oasis | Budaro®
Dom na zgłoszenie 35 m² Modern Oasis | Budaro®
Dom na zgłoszenie 35 m² Modern Oasis | Budaro®

Montaż

Dom na zgłoszenie 35 m² Modern Oasis | Budaro®
Dom na zgłoszenie 35 m² Modern Oasis | Budaro®
Dom na zgłoszenie 35 m² Modern Oasis | Budaro®
Dom na zgłoszenie 35 m² Modern Oasis | Budaro®

Pokrycie dachowe

Dom na zgłoszenie 35 m² Modern Oasis | Budaro®
Dom na zgłoszenie 35 m² Modern Oasis | Budaro®
Dom na zgłoszenie 35 m² Modern Oasis | Budaro®
Dom na zgłoszenie 35 m² Modern Oasis | Budaro®

Stolarka okienna

Dom na zgłoszenie 35 m² Modern Oasis | Budaro®
Dom na zgłoszenie 35 m² Modern Oasis | Budaro®
Dom na zgłoszenie 35 m² Modern Oasis | Budaro®
Dom na zgłoszenie 35 m² Modern Oasis | Budaro®

Drzwi wejściowe

Dom na zgłoszenie 35 m² Modern Oasis | Budaro®
Dom na zgłoszenie 35 m² Modern Oasis | Budaro®
Dom na zgłoszenie 35 m² Modern Oasis | Budaro®
Dom na zgłoszenie 35 m² Modern Oasis | Budaro®

Elewacja (w cenie deska)

Dom na zgłoszenie 35 m² Modern Oasis | Budaro®
Dom na zgłoszenie 35 m² Modern Oasis | Budaro®
Dom na zgłoszenie 35 m² Modern Oasis | Budaro®
Dom na zgłoszenie 35 m² Modern Oasis | Budaro®

Ściany działowe

Dom na zgłoszenie 35 m² Modern Oasis | Budaro®
Dom na zgłoszenie 35 m² Modern Oasis | Budaro®
Dom na zgłoszenie 35 m² Modern Oasis | Budaro®
Dom na zgłoszenie 35 m² Modern Oasis | Budaro®

Instalacja elektryczna

Dom na zgłoszenie 35 m² Modern Oasis | Budaro®
Dom na zgłoszenie 35 m² Modern Oasis | Budaro®
Dom na zgłoszenie 35 m² Modern Oasis | Budaro®
Dom na zgłoszenie 35 m² Modern Oasis | Budaro®

Instalacja wodno-kanalizacyjna

Dom na zgłoszenie 35 m² Modern Oasis | Budaro®
Dom na zgłoszenie 35 m² Modern Oasis | Budaro®
Dom na zgłoszenie 35 m² Modern Oasis | Budaro®
Dom na zgłoszenie 35 m² Modern Oasis | Budaro®

Płyta GK

Dom na zgłoszenie 35 m² Modern Oasis | Budaro®
Dom na zgłoszenie 35 m² Modern Oasis | Budaro®
Dom na zgłoszenie 35 m² Modern Oasis | Budaro®
Dom na zgłoszenie 35 m² Modern Oasis | Budaro®

Klimatyzacja

Dom na zgłoszenie 35 m² Modern Oasis | Budaro®
Dom na zgłoszenie 35 m² Modern Oasis | Budaro®
Dom na zgłoszenie 35 m² Modern Oasis | Budaro®
Dom na zgłoszenie 35 m² Modern Oasis | Budaro®

Maty grzewcze parter

Dom na zgłoszenie 35 m² Modern Oasis | Budaro®
Dom na zgłoszenie 35 m² Modern Oasis | Budaro®
Dom na zgłoszenie 35 m² Modern Oasis | Budaro®
Dom na zgłoszenie 35 m² Modern Oasis | Budaro®

Wylewka

Dom na zgłoszenie 35 m² Modern Oasis | Budaro®
Dom na zgłoszenie 35 m² Modern Oasis | Budaro®
Dom na zgłoszenie 35 m² Modern Oasis | Budaro®
Dom na zgłoszenie 35 m² Modern Oasis | Budaro®

Szpachlowanie

Dom na zgłoszenie 35 m² Modern Oasis | Budaro®
Dom na zgłoszenie 35 m² Modern Oasis | Budaro®
Dom na zgłoszenie 35 m² Modern Oasis | Budaro®
Dom na zgłoszenie 35 m² Modern Oasis | Budaro®

Schody

Dom na zgłoszenie 35 m² Modern Oasis | Budaro®
Dom na zgłoszenie 35 m² Modern Oasis | Budaro®
Dom na zgłoszenie 35 m² Modern Oasis | Budaro®
Dom na zgłoszenie 35 m² Modern Oasis | Budaro®

CENA

205 000 zł netto

232 000 zł netto

247 000 zł netto

Ceny się zmieniają,
więc uzyskaj wycenę poniżej

Ten domek jest dostosowany do wymagań deweloperów budowlanych

Możliwy projekt wykończenia
Twojego domu

Poczuj się jak w domu