NOWOCZESNY DOM BEZ POZWOLENIA NA BUDOWĘ

Modern Family

Fantastyczny dzięki swojej funkcjonalności.

W domu możemy wydzielić od 3 do 5 pomieszczeń. Dodatkowe pokoje na górze możesz wykorzystać na pokój dziecięcy, gabinet lub pokój dla gości. To idealny wybór dla rodziny.

CENA OD:

210 000 zł netto + 8% VAT

OSTATNIE TERMINY NA grudzień 2025

Dom na zgłoszenie 35 m² Modern Family | Budaro®

do 35 m2

powierzchnia zabudowy

44-47 m2

powierzchnia użytkowa

53,30 m2

powierzchnia całkowita

Powierzchnia liczona po podłodze, bez uwzględnienia ścian działowych

3-5

liczba pomieszczeń

6,78 m

wysokość

45°

kąt nachylenia dachu

Przestronne okno górne oraz drzwi tarasowe

Rodzinna przestrzeń

Projekt domu FAMILY powstał z myślą o osobach ceniących sobie dobrze rozplanowaną przestrzeń. Wydzielenie 3-5 pomieszczeń na 35m2 powierzchni zabudowy to prawdziwy majstersztyk. Jeszcze większym sukcesem, który doceniają klienci okazuje się jednak funkcjonalność tej przestrzeni mimo jej małych rozmiarów. 

W domu tym postawiliśmy też na duże okna, które za dnia wpuszczają ogromną ilość światła budując klimat wypoczynku. Co ważne dom był zaprojektowany z uwzględnieniem najwyższych standardów energooszczędności.

Możliwe warianty elewacji

Świerk impregnowany

Atrakcyjnie wyglądające drzewo, pasujące do projektu.

Dom na zgłoszenie 35 m² Modern Family | Budaro®

Blacha na rąbek

Nowoczesne rozwiązanie w kolorze wybranym przez inwestora.

Dom na zgłoszenie 35 m² Modern Family | Budaro®

Tynk silikonowy

Tradycyjny tynk, w standardzie w kolorze białym.

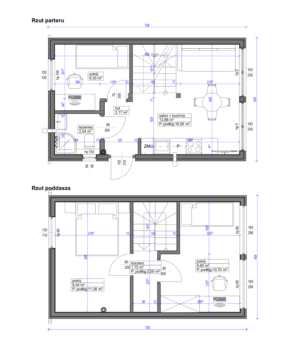
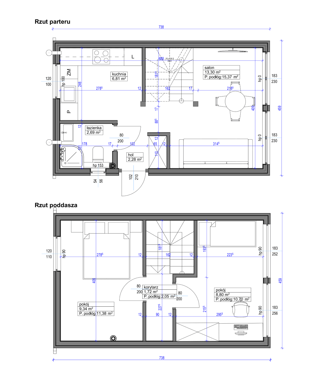
Rzut domu Modern Family

Dom na zgłoszenie 35 m² Modern Family | Budaro®
Korytarz 1,75 m2
Schody 3,35 m2

Salon + aneks kuchenny
19,50 m2

Łazienka 2,75 m2
Powierzchnia użytkowa 24 m2
Dom na zgłoszenie 35 m² Modern Family | Budaro®
Korytarz 1,15 m2
Pokój 9 m2
Garderoba 1,25 m2
Pokój 12,70 m2

Powierzchnia użytkowa 24,10 m2

Modern Family
w trakcie i po realizacji

Dom modułowy Family w Parlinie 07
Dom modułowy w Parlinie 006

Zapraszamy do środka

Dobierz pakiet korzyści
dopasowany do Twoich potrzeb

Podstawowy

Deweloperski

Deweloperski Plus

Pod Klucz

Dom na zgłoszenie 35 m² Modern Family | Budaro®

Dokumentacja projektowa

Dom na zgłoszenie 35 m² Modern Family | Budaro®
Dom na zgłoszenie 35 m² Modern Family | Budaro®
Dom na zgłoszenie 35 m² Modern Family | Budaro®
Dom na zgłoszenie 35 m² Modern Family | Budaro®
Dom na zgłoszenie 35 m² Modern Family | Budaro®

Transport na terenie całej Polski

Dom na zgłoszenie 35 m² Modern Family | Budaro®
Dom na zgłoszenie 35 m² Modern Family | Budaro®
Dom na zgłoszenie 35 m² Modern Family | Budaro®
Dom na zgłoszenie 35 m² Modern Family | Budaro®
Dom na zgłoszenie 35 m² Modern Family | Budaro®

Płyta fundamentowa

Dom na zgłoszenie 35 m² Modern Family | Budaro®
Dom na zgłoszenie 35 m² Modern Family | Budaro®
Dom na zgłoszenie 35 m² Modern Family | Budaro®
Dom na zgłoszenie 35 m² Modern Family | Budaro®
Dom na zgłoszenie 35 m² Modern Family | Budaro®

Konstrukcja domu

Dom na zgłoszenie 35 m² Modern Family | Budaro®
Dom na zgłoszenie 35 m² Modern Family | Budaro®
Dom na zgłoszenie 35 m² Modern Family | Budaro®
Dom na zgłoszenie 35 m² Modern Family | Budaro®
Dom na zgłoszenie 35 m² Modern Family | Budaro®

Montaż

Dom na zgłoszenie 35 m² Modern Family | Budaro®
Dom na zgłoszenie 35 m² Modern Family | Budaro®
Dom na zgłoszenie 35 m² Modern Family | Budaro®
Dom na zgłoszenie 35 m² Modern Family | Budaro®
Dom na zgłoszenie 35 m² Modern Family | Budaro®

Pokrycie dachowe

Dom na zgłoszenie 35 m² Modern Family | Budaro®
Dom na zgłoszenie 35 m² Modern Family | Budaro®
Dom na zgłoszenie 35 m² Modern Family | Budaro®
Dom na zgłoszenie 35 m² Modern Family | Budaro®
Dom na zgłoszenie 35 m² Modern Family | Budaro®

Stolarka okienna

Dom na zgłoszenie 35 m² Modern Family | Budaro®
Dom na zgłoszenie 35 m² Modern Family | Budaro®
Dom na zgłoszenie 35 m² Modern Family | Budaro®
Dom na zgłoszenie 35 m² Modern Family | Budaro®
Dom na zgłoszenie 35 m² Modern Family | Budaro®

Drzwi wejściowe

Dom na zgłoszenie 35 m² Modern Family | Budaro®
Dom na zgłoszenie 35 m² Modern Family | Budaro®
Dom na zgłoszenie 35 m² Modern Family | Budaro®
Dom na zgłoszenie 35 m² Modern Family | Budaro®
Dom na zgłoszenie 35 m² Modern Family | Budaro®

Elewacja (w cenie deska)

Dom na zgłoszenie 35 m² Modern Family | Budaro®
Dom na zgłoszenie 35 m² Modern Family | Budaro®
Dom na zgłoszenie 35 m² Modern Family | Budaro®
Dom na zgłoszenie 35 m² Modern Family | Budaro®
Dom na zgłoszenie 35 m² Modern Family | Budaro®

Ściany działowe

Dom na zgłoszenie 35 m² Modern Family | Budaro®
Dom na zgłoszenie 35 m² Modern Family | Budaro®
Dom na zgłoszenie 35 m² Modern Family | Budaro®
Dom na zgłoszenie 35 m² Modern Family | Budaro®
Dom na zgłoszenie 35 m² Modern Family | Budaro®

Instalacja elektryczna

Dom na zgłoszenie 35 m² Modern Family | Budaro®
Dom na zgłoszenie 35 m² Modern Family | Budaro®
Dom na zgłoszenie 35 m² Modern Family | Budaro®
Dom na zgłoszenie 35 m² Modern Family | Budaro®
Dom na zgłoszenie 35 m² Modern Family | Budaro®

Instalacja wodno-kanalizacyjna

Dom na zgłoszenie 35 m² Modern Family | Budaro®
Dom na zgłoszenie 35 m² Modern Family | Budaro®
Dom na zgłoszenie 35 m² Modern Family | Budaro®
Dom na zgłoszenie 35 m² Modern Family | Budaro®
Dom na zgłoszenie 35 m² Modern Family | Budaro®

Płyta GK

Dom na zgłoszenie 35 m² Modern Family | Budaro®
Dom na zgłoszenie 35 m² Modern Family | Budaro®
Dom na zgłoszenie 35 m² Modern Family | Budaro®
Dom na zgłoszenie 35 m² Modern Family | Budaro®
Dom na zgłoszenie 35 m² Modern Family | Budaro®

Klimatyzacja

Dom na zgłoszenie 35 m² Modern Family | Budaro®
Dom na zgłoszenie 35 m² Modern Family | Budaro®
Dom na zgłoszenie 35 m² Modern Family | Budaro®
Dom na zgłoszenie 35 m² Modern Family | Budaro®
Dom na zgłoszenie 35 m² Modern Family | Budaro®

Maty grzewcze parter

Dom na zgłoszenie 35 m² Modern Family | Budaro®
Dom na zgłoszenie 35 m² Modern Family | Budaro®
Dom na zgłoszenie 35 m² Modern Family | Budaro®
Dom na zgłoszenie 35 m² Modern Family | Budaro®
Dom na zgłoszenie 35 m² Modern Family | Budaro®

Wylewka

Dom na zgłoszenie 35 m² Modern Family | Budaro®
Dom na zgłoszenie 35 m² Modern Family | Budaro®
Dom na zgłoszenie 35 m² Modern Family | Budaro®
Dom na zgłoszenie 35 m² Modern Family | Budaro®
Dom na zgłoszenie 35 m² Modern Family | Budaro®

Szpachlowanie

Dom na zgłoszenie 35 m² Modern Family | Budaro®
Dom na zgłoszenie 35 m² Modern Family | Budaro®
Dom na zgłoszenie 35 m² Modern Family | Budaro®
Dom na zgłoszenie 35 m² Modern Family | Budaro®
Dom na zgłoszenie 35 m² Modern Family | Budaro®

Ocieplenie

Dom na zgłoszenie 35 m² Modern Family | Budaro®
Dom na zgłoszenie 35 m² Modern Family | Budaro®
Dom na zgłoszenie 35 m² Modern Family | Budaro®
Dom na zgłoszenie 35 m² Modern Family | Budaro®
Dom na zgłoszenie 35 m² Modern Family | Budaro®

Orynnowanie

Dom na zgłoszenie 35 m² Modern Family | Budaro®
Dom na zgłoszenie 35 m² Modern Family | Budaro®
Dom na zgłoszenie 35 m² Modern Family | Budaro®
Dom na zgłoszenie 35 m² Modern Family | Budaro®
Dom na zgłoszenie 35 m² Modern Family | Budaro®

Instalacja CO

Dom na zgłoszenie 35 m² Modern Family | Budaro®
Dom na zgłoszenie 35 m² Modern Family | Budaro®
Dom na zgłoszenie 35 m² Modern Family | Budaro®
Dom na zgłoszenie 35 m² Modern Family | Budaro®
Dom na zgłoszenie 35 m² Modern Family | Budaro®

Schody

Dom na zgłoszenie 35 m² Modern Family | Budaro®
Dom na zgłoszenie 35 m² Modern Family | Budaro®
Dom na zgłoszenie 35 m² Modern Family | Budaro®
Dom na zgłoszenie 35 m² Modern Family | Budaro®
Dom na zgłoszenie 35 m² Modern Family | Budaro®

Malowanie

Dom na zgłoszenie 35 m² Modern Family | Budaro®
Dom na zgłoszenie 35 m² Modern Family | Budaro®
Dom na zgłoszenie 35 m² Modern Family | Budaro®
Dom na zgłoszenie 35 m² Modern Family | Budaro®
Dom na zgłoszenie 35 m² Modern Family | Budaro®

Podłogi

Dom na zgłoszenie 35 m² Modern Family | Budaro®
Dom na zgłoszenie 35 m² Modern Family | Budaro®
Dom na zgłoszenie 35 m² Modern Family | Budaro®
Dom na zgłoszenie 35 m² Modern Family | Budaro®
Dom na zgłoszenie 35 m² Modern Family | Budaro®

Kontakty i włączniki

Dom na zgłoszenie 35 m² Modern Family | Budaro®
Dom na zgłoszenie 35 m² Modern Family | Budaro®
Dom na zgłoszenie 35 m² Modern Family | Budaro®
Dom na zgłoszenie 35 m² Modern Family | Budaro®
Dom na zgłoszenie 35 m² Modern Family | Budaro®

Drzwi wewnętrzne

Dom na zgłoszenie 35 m² Modern Family | Budaro®
Dom na zgłoszenie 35 m² Modern Family | Budaro®
Dom na zgłoszenie 35 m² Modern Family | Budaro®
Dom na zgłoszenie 35 m² Modern Family | Budaro®
Dom na zgłoszenie 35 m² Modern Family | Budaro®

CENA

210 000 zł netto

232 000 zł netto

247 000 zł netto

297 700 zł netto

Ceny się zmieniają,
więc uzyskaj wycenę poniżej

Ten domek jest dostosowany do wymagań deweloperów budowlanych

Możliwy projekt wykończenia
Twojego domu

Poczuj się jak w domu