NOWOCZESNY DOM BEZ POZWOLENIA NA BUDOWĘ

Modern Harmony 115 m2

Dom modułowy oparty na solidnym drewnianym szkielecie, który łączy innowacyjne technologie z komfortem i funkcjonalnością.
Powierzchnia użytkowa: 105 m2 – idealnie sprawdzi się dla rodziny.

CENA OD:

369 000 zł netto + 8% VAT

OSTATNIE TERMINY NA marzec 2026

Dom na zgłoszenie 70 m² Modern Harmony | Budaro®

70 m2

powierzchnia zabudowy

105 m2

powierzchnia użytkowa

105-115 m2

powierzchnia całkowita

Powierzchnia liczona po podłodze, bez uwzględnienia ścian działowych

8-10

liczba pomieszczeń

7,19 m

wysokość

40°

kąt nachylenia dachu

Przestronne okno górne oraz drzwi tarasowe

Przestronny dom z wielkimi możliwościami

Projekt domu Modern Harmony 115 m2 to nowoczesna technologia hybrydowa, łącząca trwałość solidnego szkieletu z naturalnym ciepłem drewna. Konstrukcja wykonana z wysokiej jakości drewna zapewnia wyjątkową sztywność, odporność na warunki atmosferyczne oraz bezpieczeństwo. Dodatkowe elementy drewniane nadają budynkowi harmonijny wygląd i podkreślają jego nowoczesny design.

Możliwość personalizacji pozwala dostosować dom do indywidualnych potrzeb dzięki różnym wariantom układu wnętrz oraz wykończenia. Ekologiczne rozwiązania obejmują opcjonalną instalację paneli fotowoltaicznych.

Możliwe warianty elewacji

Świerk impregnowany

Atrakcyjnie wyglądające drzewo, pasujące do projektu.

Dom na zgłoszenie 70 m² Modern Harmony | Budaro®

Blacha na rąbek

Nowoczesne rozwiązanie w kolorze wybranym przez inwestora.

Dom na zgłoszenie 70 m² Modern Harmony | Budaro®

Tynk silikonowy

Tradycyjny tynk, w standardzie w kolorze białym.

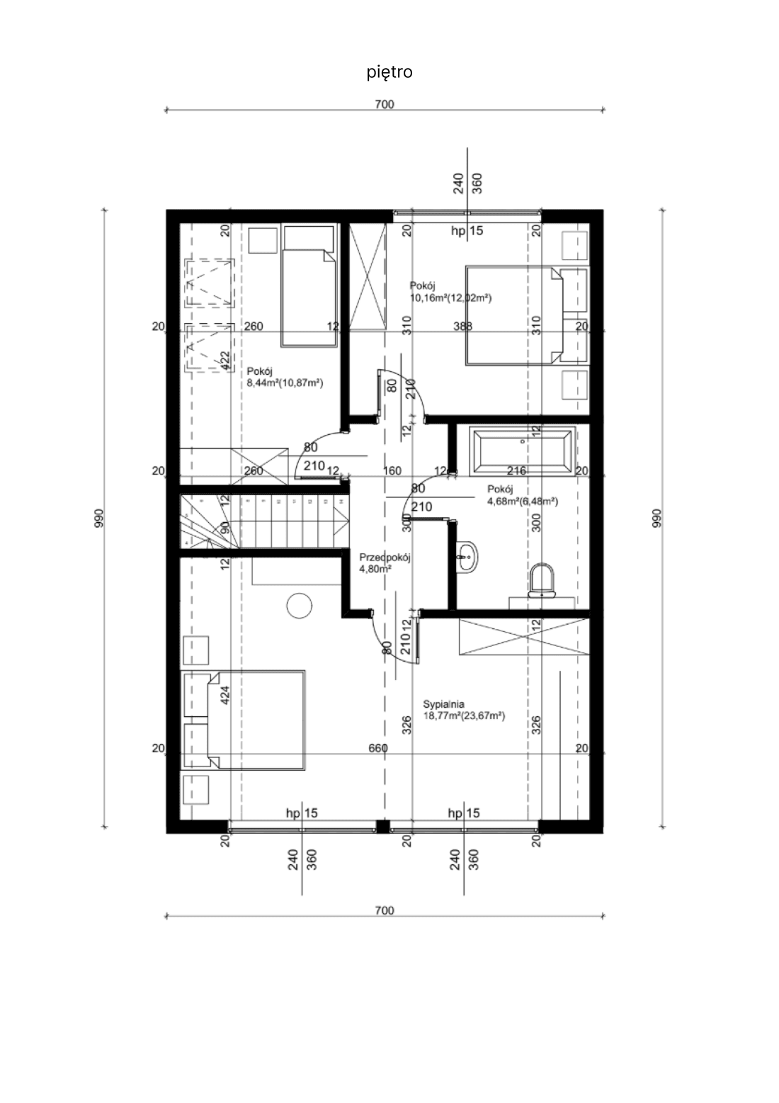
Rzuty domu Modern Harmony 115 m2

Zapraszamy do środka

Dobierz pakiet korzyści
dopasowany do Twoich potrzeb

Podstawowy

Deweloperski

Deweloperski Plus

Dom na zgłoszenie 70 m² Modern Harmony | Budaro®

Dokumentacja projektowa

Dom na zgłoszenie 70 m² Modern Harmony | Budaro®
Dom na zgłoszenie 70 m² Modern Harmony | Budaro®
Dom na zgłoszenie 70 m² Modern Harmony | Budaro®
Dom na zgłoszenie 70 m² Modern Harmony | Budaro®

Transport na terenie całej Polski

Dom na zgłoszenie 70 m² Modern Harmony | Budaro®
Dom na zgłoszenie 70 m² Modern Harmony | Budaro®
Dom na zgłoszenie 70 m² Modern Harmony | Budaro®
Dom na zgłoszenie 70 m² Modern Harmony | Budaro®

Płyta fundamentowa

Dom na zgłoszenie 70 m² Modern Harmony | Budaro®
Dom na zgłoszenie 70 m² Modern Harmony | Budaro®
Dom na zgłoszenie 70 m² Modern Harmony | Budaro®
Dom na zgłoszenie 70 m² Modern Harmony | Budaro®

Konstrukcja domu

Dom na zgłoszenie 70 m² Modern Harmony | Budaro®
Dom na zgłoszenie 70 m² Modern Harmony | Budaro®
Dom na zgłoszenie 70 m² Modern Harmony | Budaro®
Dom na zgłoszenie 70 m² Modern Harmony | Budaro®

Montaż

Dom na zgłoszenie 70 m² Modern Harmony | Budaro®
Dom na zgłoszenie 70 m² Modern Harmony | Budaro®
Dom na zgłoszenie 70 m² Modern Harmony | Budaro®
Dom na zgłoszenie 70 m² Modern Harmony | Budaro®

Pokrycie dachowe

Dom na zgłoszenie 70 m² Modern Harmony | Budaro®
Dom na zgłoszenie 70 m² Modern Harmony | Budaro®
Dom na zgłoszenie 70 m² Modern Harmony | Budaro®
Dom na zgłoszenie 70 m² Modern Harmony | Budaro®

Stolarka okienna

Dom na zgłoszenie 70 m² Modern Harmony | Budaro®
Dom na zgłoszenie 70 m² Modern Harmony | Budaro®
Dom na zgłoszenie 70 m² Modern Harmony | Budaro®
Dom na zgłoszenie 70 m² Modern Harmony | Budaro®

Drzwi wejściowe

Dom na zgłoszenie 70 m² Modern Harmony | Budaro®
Dom na zgłoszenie 70 m² Modern Harmony | Budaro®
Dom na zgłoszenie 70 m² Modern Harmony | Budaro®
Dom na zgłoszenie 70 m² Modern Harmony | Budaro®

Elewacja (w cenie deska)

Dom na zgłoszenie 70 m² Modern Harmony | Budaro®
Dom na zgłoszenie 70 m² Modern Harmony | Budaro®
Dom na zgłoszenie 70 m² Modern Harmony | Budaro®
Dom na zgłoszenie 70 m² Modern Harmony | Budaro®

Ściany działowe

Dom na zgłoszenie 70 m² Modern Harmony | Budaro®
Dom na zgłoszenie 70 m² Modern Harmony | Budaro®
Dom na zgłoszenie 70 m² Modern Harmony | Budaro®
Dom na zgłoszenie 70 m² Modern Harmony | Budaro®

Instalacja elektryczna

Dom na zgłoszenie 70 m² Modern Harmony | Budaro®
Dom na zgłoszenie 70 m² Modern Harmony | Budaro®
Dom na zgłoszenie 70 m² Modern Harmony | Budaro®
Dom na zgłoszenie 70 m² Modern Harmony | Budaro®

Instalacja wodno-kanalizacyjna

Dom na zgłoszenie 70 m² Modern Harmony | Budaro®
Dom na zgłoszenie 70 m² Modern Harmony | Budaro®
Dom na zgłoszenie 70 m² Modern Harmony | Budaro®
Dom na zgłoszenie 70 m² Modern Harmony | Budaro®

Płyta GK

Dom na zgłoszenie 70 m² Modern Harmony | Budaro®
Dom na zgłoszenie 70 m² Modern Harmony | Budaro®
Dom na zgłoszenie 70 m² Modern Harmony | Budaro®
Dom na zgłoszenie 70 m² Modern Harmony | Budaro®

Klimatyzacja

Dom na zgłoszenie 70 m² Modern Harmony | Budaro®
Dom na zgłoszenie 70 m² Modern Harmony | Budaro®
Dom na zgłoszenie 70 m² Modern Harmony | Budaro®
Dom na zgłoszenie 70 m² Modern Harmony | Budaro®

Maty grzewcze parter

Dom na zgłoszenie 70 m² Modern Harmony | Budaro®
Dom na zgłoszenie 70 m² Modern Harmony | Budaro®
Dom na zgłoszenie 70 m² Modern Harmony | Budaro®
Dom na zgłoszenie 70 m² Modern Harmony | Budaro®

Wylewka

Dom na zgłoszenie 70 m² Modern Harmony | Budaro®
Dom na zgłoszenie 70 m² Modern Harmony | Budaro®
Dom na zgłoszenie 70 m² Modern Harmony | Budaro®
Dom na zgłoszenie 70 m² Modern Harmony | Budaro®

Szpachlowanie

Dom na zgłoszenie 70 m² Modern Harmony | Budaro®
Dom na zgłoszenie 70 m² Modern Harmony | Budaro®
Dom na zgłoszenie 70 m² Modern Harmony | Budaro®
Dom na zgłoszenie 70 m² Modern Harmony | Budaro®

Schody

Dom na zgłoszenie 70 m² Modern Harmony | Budaro®
Dom na zgłoszenie 70 m² Modern Harmony | Budaro®
Dom na zgłoszenie 70 m² Modern Harmony | Budaro®
Dom na zgłoszenie 70 m² Modern Harmony | Budaro®

CENA

369 000 zł netto

232 000 zł netto

247 000 zł netto

Ceny się zmieniają,
więc uzyskaj wycenę poniżej

Ten dom jest dostosowany do wymagań deweloperów budowlanych

Możliwy projekt wykończenia
Twojego domu